Leibniz Universität Hannover
1. Phase: Neubau Testzentrum Tragstrukturen
2. Phase: Aufstockung Testzentrum Tragstrukturen
Das Testzentrum für Tragstrukturen wurde für die Optimierung und Neuentwicklung von Tragstrukturen für Windenergieanlagen sowie für die Entwicklung von Umrichtern und Generatoren als Neubau erstellt. Das Projekt ist ein Beispiel für die Durchführung von Großprojekten unter engem Terminrahmen und Förderung durch die EU und die Bundesrepublik Deutschland. Bei der Nutzung handelt es sich um Versuchshallen, Werkstätten, experimentelle Räume, Labore und Büros. Es werden großmaßstäbliche Versuche an Originalbauteilen, aber auch an Modellen durchgeführt, um die Extrem- und Ermüdungslastfähigkeit von Bauteilen zu untersuchen und Risikoanalysen durchzuführen.
Das Testzentrum für Tragstrukturen wurde für die Optimierung und Neuentwicklung von Tragstrukturen für Windenergieanlagen sowie für die Entwicklung von Umrichtern und Generatoren als Neubau erstellt. Das Projekt ist ein Beispiel für die Durchführung von Großprojekten unter engem Terminrahmen und Förderung durch die EU und die Bundesrepublik Deutschland. Bei der Nutzung handelt es sich um Versuchshallen, Werkstätten, experimentelle Räume, Labore und Büros. Es werden großmaßstäbliche Versuche an Originalbauteilen, aber auch an Modellen durchgeführt, um die Extrem- und Ermüdungslastfähigkeit von Bauteilen zu untersuchen und Risikoanalysen durchzuführen.
Die Herausforderung
„Die bauliche Ergänzung erfolgte im laufenden Hochschulbetrieb und erforderte eine präzise Abstimmung zwischen Planung, Konstruktion und Nutzung.“
Thomas Stricker
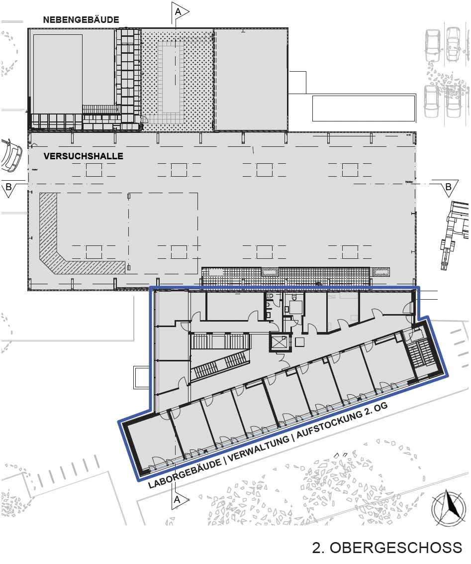
Aufgrund der steigenden Auslastung des Testzentrums für Tragstrukturen wurde zur Schaffung zusätzlicher Büroflächen eine Aufstockung des Büro-/ Laborriegels konzipiert und die vorhandene Gebäudestruktur unter Berücksichtigung der Barrierefreiheit um ein zusätzliches Obergeschoss erweitert. Es entstanden Büroräume mit insgesamt 30 Arbeitsplätzen für wissenschaftliche MitarbeiterInnen, StudentInnen und AbteilungsleiterInnen und dazugehörige Nebenräume wie WC-Bereiche, Technik-/ Lagerräume sowie ein Sozialraum.
Die gewählten Baukonstruktionen/ das Tragwerk (Stahlbetonbau, hinterlüftete Fassade mit Metallplattenbekleidung, Foyer mit Pfosten-Riegel-Fassade, Flachdach) sowie die Grundrissorganisation berücksichtigten bereits bei der Errichtung des Neubaus die Option einer späteren Aufstockung des Labor- und Büroriegels.
Phase 1: Konstruktion und Zeichnungen
projekt details
Phase 1
Bauherr
Staatliches Baumanagement Hannover
Leistungen
Objektplanung Hochbau und Freianlagen, LP 2-8
Termine
Fertigstellung (Neubau) 06/2014
Kennwerte
NGF: 2.110 m², BGF: 2.395 m², BRI: 26.000 m³
Copyright
Fotos: Olaf Mahlstedt
Phase 2: Konstruktion und Zeichnungen
Phase 2: Fotos
Das Ergebnis
Mit der Aufstockung des Testzentrums für Tragstrukturen wurde die vorhandene Gebäudestruktur ressourcenschonend und nachhaltig weiterentwickelt.
Die Maßnahme zeigt, wie vorausschauende Planung langfristige Flexibilität ermöglicht: Die konstruktive Vorbereitung der Erweiterungsoption erlaubte eine effiziente Umsetzung und stärkt den Standort als leistungsfähige Forschungsinfrastruktur der Leibniz Universität Hannover.
projekt details
Phase 2
Bauherr
Leibniz Universität Hannover
Leistungen
Objektplanung Hochbau, LP 2-8
Termine
Fertigstellung (Aufstockung) 05/2021
Kennwerte
NGF: 457 m², BGF: 524 m², BRI: 2340 m³
Copyright
Fotos: Olaf Mahlstedt






























