Gründungsviertel Lübeck
Nach dem Erfolg im offenen Wettbewerb ,,Gründungsviertel Lübeck“ folgte die Planung von drei aneinandergrenzenden Stadthäusern im historischen Kaufmannsviertel.
Das im 2. Weltkrieg zerstörte Viertel in der Lübecker Altstadt sollte parzellengerecht wiederaufgebaut und die Gebäudevielfalt der jahrhundertealten Gebäudestruktur durch im Bautyp ähnliche, aber in Struktur und Materialität unterschiedliche Architektur wiederhergestellt werden.
Unter Berücksichtigung der Gestaltungssatzung, der Vorgaben des Wettbewerbe-Beirats und der lübischen Bautradition wurde der Entwurf für drei giebelständige Stadthaustypen entwickelt.
Die Planung entstand in enger Zusammenarbeit mit der Bauherrengemeinschaft /3-Giebel GbR, deren Mitglieder ihre individuellen Gestaltungsansprüche in die Grundrissgestaltung einbringen konnten.
Nach dem Erfolg im offenen Wettbewerb ,,Gründungsviertel Lübeck“ folgte die Planung von drei aneinandergrenzenden Stadthäusern im historischen Kaufmannsviertel.
Das im 2. Weltkrieg zerstörte Viertel in der Lübecker Altstadt sollte parzellengerecht wiederaufgebaut und die Gebäudevielfalt der jahrhundertealten Gebäudestruktur durch im Bautyp ähnliche, aber in Struktur und Materialität unterschiedliche Architektur wiederhergestellt werden.
Unter Berücksichtigung der Gestaltungssatzung, der Vorgaben des Wettbewerbe-Beirats und der lübischen Bautradition wurde der Entwurf für drei giebelständige Stadthaustypen entwickelt.
Die Planung entstand in enger Zusammenarbeit mit der Bauherrengemeinschaft /3-Giebel GbR, deren Mitglieder ihre individuellen Gestaltungsansprüche in die Grundrissgestaltung einbringen konnten.
Die Herausforderung
„Die Idee des Entwurfs ist es im historischen Umfeld zeitgemäße Architektursprache umzusetzen. Der Neubau sollte sich harmonisch in seinen Kontext einfügen und zugleich eine eigenständige Identität darstellen.“
Julia Jüttner
Viele ortstypische architektonische Elemente wurden als Inspiration genutzt, um ein für den Standort passenden Neubau zu entwerfen. Insbesondere wurden die Grundrisse individuell nach den Ansprüchen der zukünftigen Nutzern gestaltet.
Skizzen und Zeichnungen
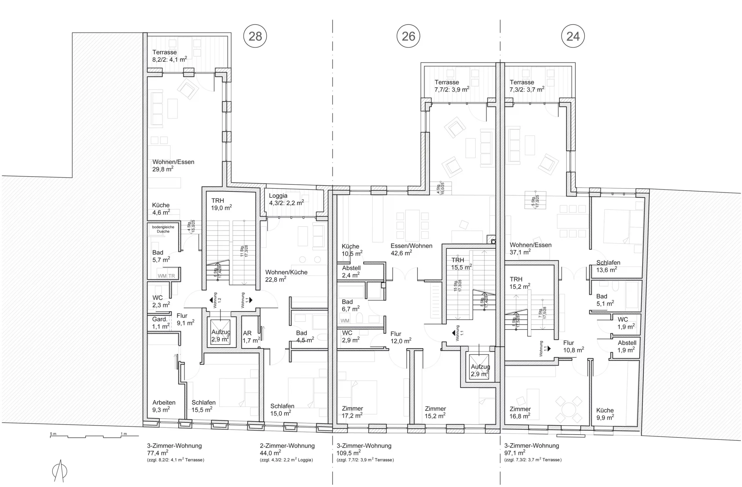
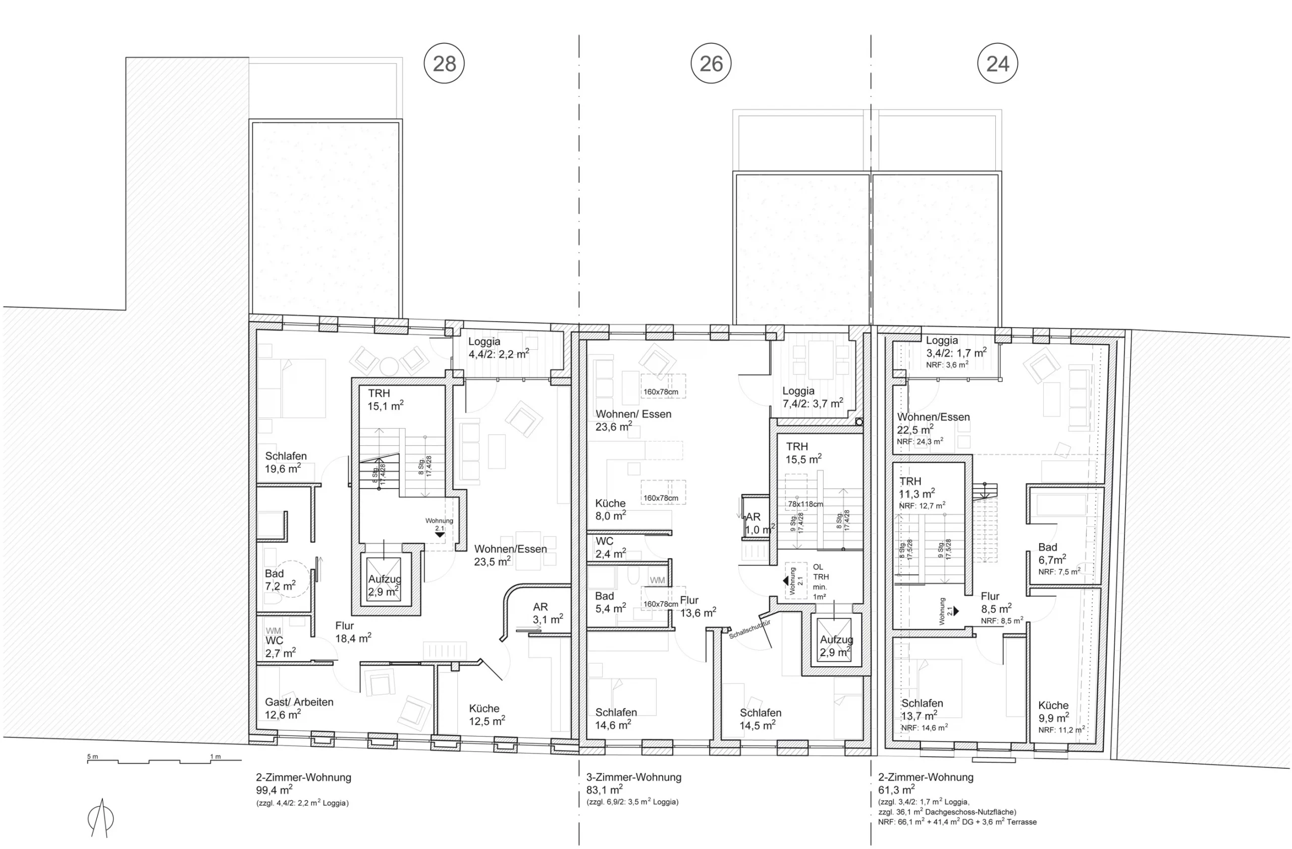
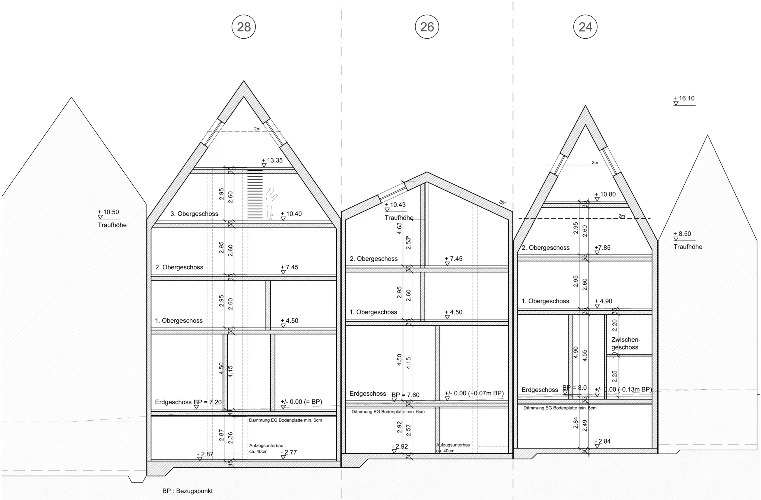
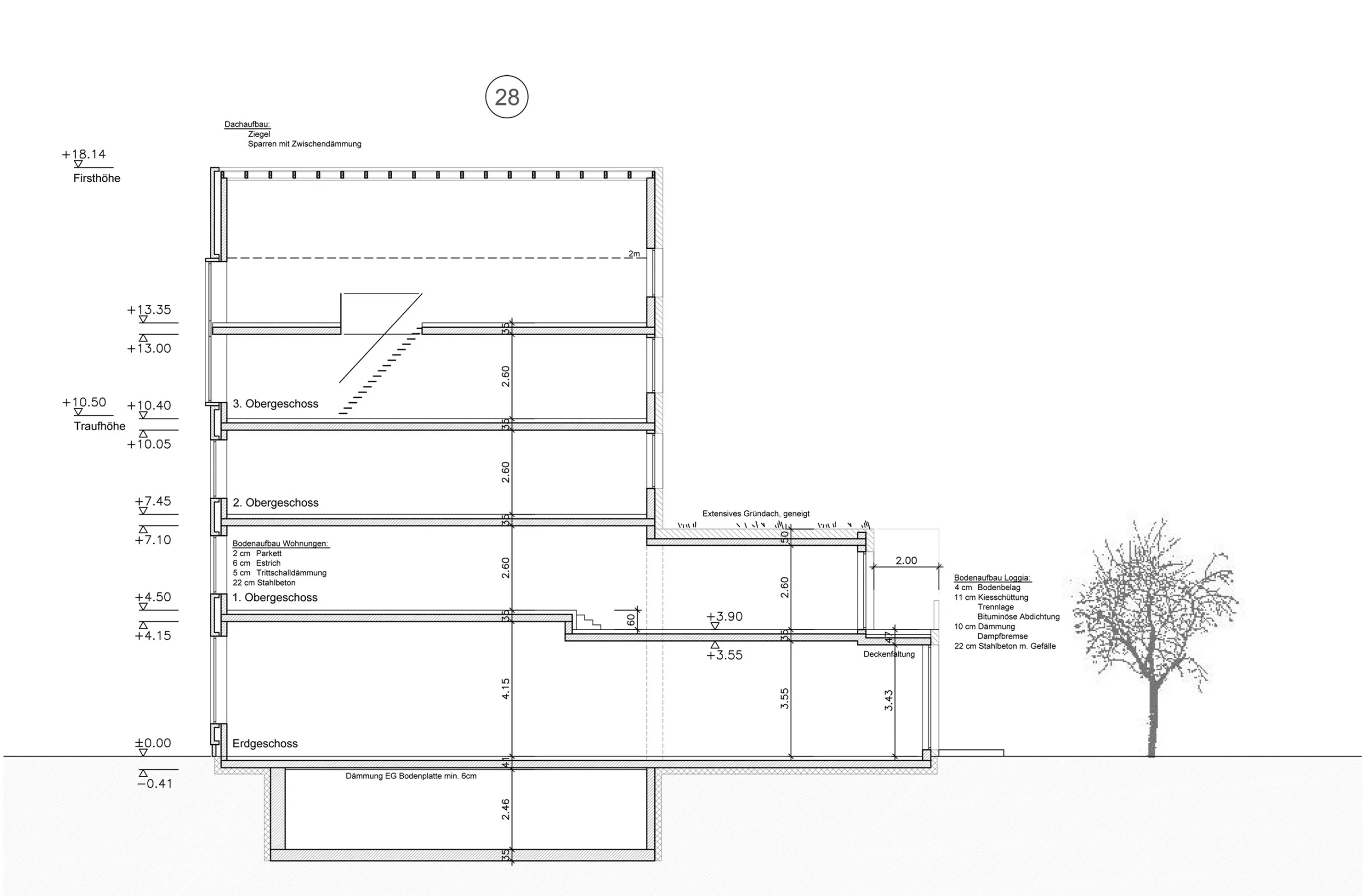
Der Entwurf besteht aus drei giebelständigen Stadthaustypen, die jeweils in eine hohe Erdgeschosszone, einem Mittelbereich und in eine Giebelzone gegliedert werden. Die Straßenseitigen Fassaden sind reliefartig ausgebildet und unterscheiden sich in ihrer Materialität:
Braunstraße 28: Ziegelfassade aus dünnen Langformatziegeln, Profilierung durch Vor- und Rücksprünge des Materials, nach außen öffnende Fenster
Braunstraße 26: Putzfassade, Gesimse und Attikaabschluss in Anlehnung an das klassizistische Bürgerhaus
Braunstraße 24: Muschelkalk-Schlämmfassade in Anlehnung an die skandinavisch geprägten Schlämmfassaden in Lübeck.
Die Hoffassaden sind zurückhaltender und als Putzfassaden gestaltet, die unterschiedlich geneigten Dächer sind mit Tonziegeln gedeckt.
Im Inneren der Häuser befinden sich insgesamt zwölf individuell geschnittene Wohnungen zwischen 45 und 120 m², teilweise über zwei Geschosse mit großzügigen Lufträumen, die an die historischen Lübecker Dielenhäuser anknüpfen.
Das Ergebnis
Die Neubebauung des Gründungsviertels auf historischen Parzellen ermöglichte eine kritische Rekonstruktion der Stadtstruktur, um ein modernes Wohnquartier zu schaffen.
Durch die Neuinterpretation traditioneller Elemente bleibt der Charakter des Ortes erhalten und erzeugt ein Zusammenspiel von Geschichte und Gegenwart.
projekt details
Bauherr
3-Giebel GbR
Leistungen
Objektplanung Hochbau, LP 2-9
Termine
Bauzeit
04/2018 - 09/2019
Kennwerte
Braunstr. 24
BGF: 672,10 m²
Braunstr. 26
BGF: 564,90 m²
Braunstr. 28
BGF: 904,90 m²
Copyright
Modell: Czylwik & Lotze GmbH






















